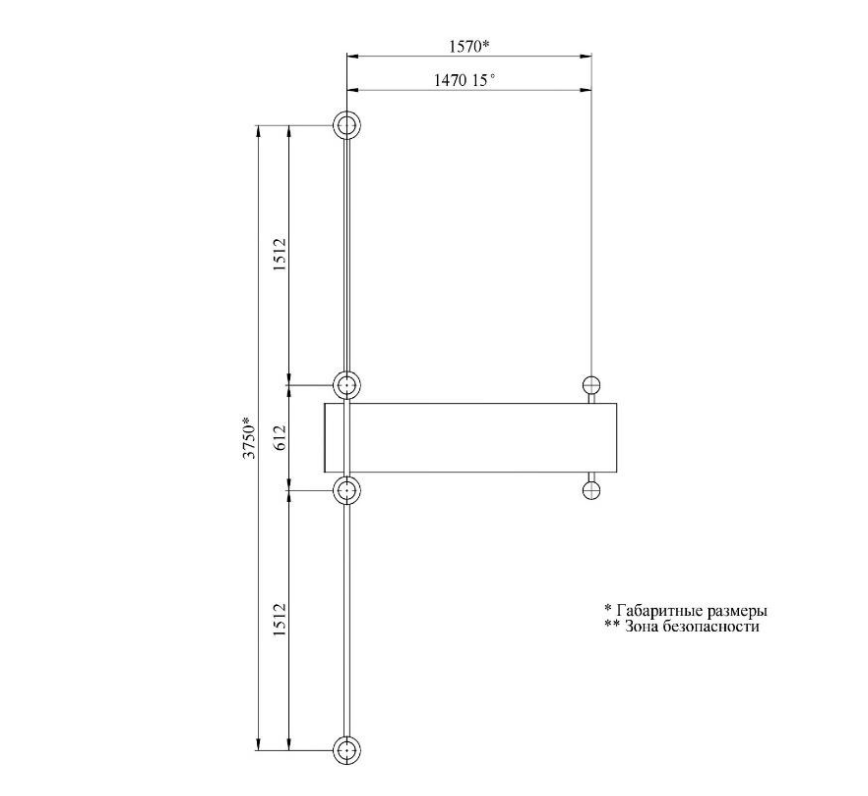
Спортивный комплекс №39, скамья для пресса с турниками.
Предназначен для развития силы хвата и укрепления мышц рук, спины, груди и брюшного пресса, а также способствует вытяжению позвоночника.
Конструкция включает в себя:
-
прочные металлические стойки диаметром 89 мм;
-
две турникетные перекладины;
-
регулируемую доску для тренировки пресса, оснащенную дополнительной перекладиной.
Высоту перекладин и угол наклона скамьи можно легко настроить с помощью надежных хомутов. Этот многофункциональный комплекс может использоваться как самостоятельный тренажер, так и быть интегрирован в состав уличной воркаут-площадки.
Для изготовления скамьи для пресса применяется ламинированная фанера или массивный брус сечением 100х100 мм. Все металлические элементы (стойки, перекладины) производятся из высокопрочной стали, что гарантирует их исключительную долговечность. Доступно изготовление опорных стоек и других элементов с диаметром 89 мм. Для защиты от коррозии и придания эстетичного вида металл покрывается износостойкой порошковой краской любого цвета по каталогу RAL.
