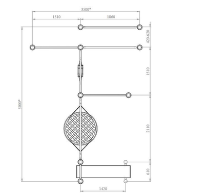
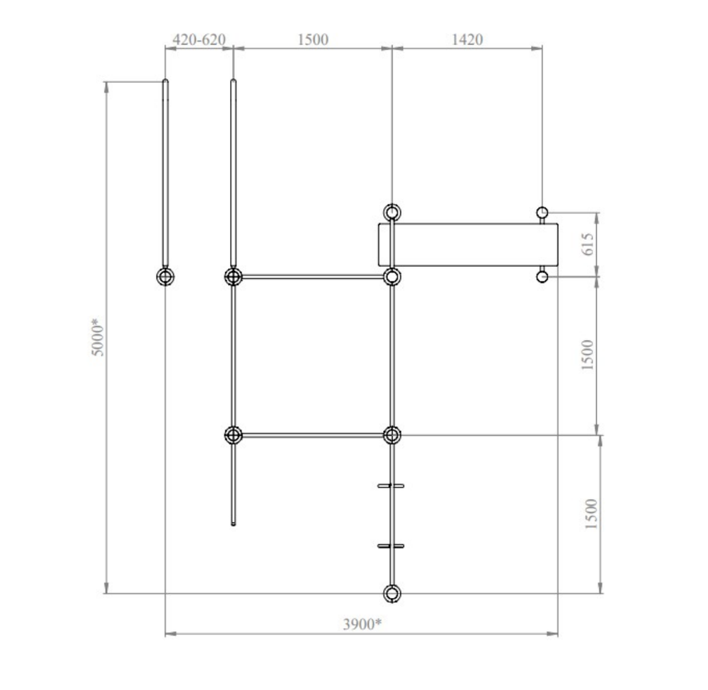
Спортивный комплекс №101 разработан для развития силы, ловкости и хвата, обеспечивая комплексную проработку ключевых групп мышц: плечевого пояса, спины, пресса, бицепсов и трицепсов.
Комплектация:
-
Скамья для пресса с перекладиной
-
Шведская стенка
-
Три турника на разной высоте
-
Брусья
-
Гимнастические кольца
-
Кронштейн для подвески груши (груша в комплект не входит)
Конструктивные особенности:
-
Настройка: Высоту перекладин и угол наклона скамьи можно регулировать с помощью надежных хомутов.
-
Универсальность: Комплекс можно использовать как самостоятельный тренажер или как часть большой воркаут-площадки.
-
Материалы:
-
Скамья для пресса: ламинированная фанера или массивный брус 100х100 мм.
-
Каркас: прочные стальные стойки диаметром 89 мм, обеспечивающие долговечность и устойчивость.
-
-
Защита: Все металлические элементы покрыты износостойкой порошковой краской. Доступна любая цветовая палитра по стандарту RAL.
